Where Are They Now? - Damien
One of the most unique vehicles depicted in the Bus Barn is Damien's Ward-LaFrance snorkel fire truck conversion.
Some weeks ago, I got an email from a retired firefighter from Mobile, Alabama who, along with the rest of his crew, was assigned to Snorkel #6. He was interested to know the whereabouts of the former fire apparatus today, and what condition it was in. Since I'm in contact with Damien on-and-off, I decided it was a good time to check in with him as see what he had been up to lately, and pass along the message from the fire guy.
His reply was fluent, and included a more recent photo of the truck:

"Yes, the fire-truck is still my dream-home and is my permanent other-home cum cottage cum writing-studio cum hidden desolate mountain cabin (in a suburban industrial park no-less). Last week I was trying to perfect my rainwater-collection system that collects water from the huge plexiglass dome at the front. Photo attached of the Amazon Jungle creeping up on me. I use it year-round as my weekend retreat. I'm five years into writing a book ... and the fire-truck is
absolutely perfect."
Now, digging around on the hard disc of my computer, I found additional photos that I didn't use in the composition of the original page on the site. I think, in fact, that I have the originals, in a larger format, on a backup computer, I'll have to have a look around. For now, here's some interior pics that you haven't yet viewed:

This one is of the rear loft, a bedroom over the bath, as it were.

The ever-lovely Perma, modeling at the entrance to the rear loft.
I'm thinking that I see the scale model of the truck that Damien built inside the display cabinet.

Now, here's something I ~didn't~ take note of back in 2002.
Damien has an enlargement of photos from Rolling Homes
on the wall, including images of Glen, Michael, and Al's housetrucks.
When Damien replied to my passing along the inquiry about the truck's running condition, here's what I found:
"The truck is fine, everything works, but it hasn't moved very far. I last fired up the engine in 1999 if that gives me any street-cred but I was choking for days of half-ignited diesel dust and getting high off the starting ether. When the time comes to move it ... a good tow would probably be logistically more sane than trying to drive it."
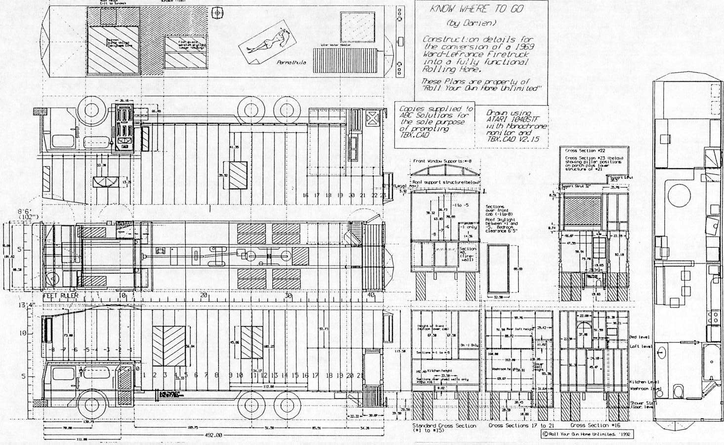
OK, now here's something that I wanted to present full-sized, but it's too big to put on a page, so click the image below to be taken to a large CAD drawing (composed on an Atari computer!) of the fire truck:
Finally, Damien and Perma have recently returned from a bicycle tour of Europe:

"I do tons of traveling and just got back last weekend from 4 weeks of bicycling all over Holland and Belgium and a touch on Germany. We did a total of 750 km and got totally rained out for 5 days. Every evening we stay in a different hotel. Perma can use her Travel Agent discount rate and get us nice hotels for LESS than it costs to camp … if you can believe that. We are paid on average 45 Euros per night total"
There you have it. I'm hoping to somehow get a copy of the photo of the fire truck's crew standing next to it when it was in service in Mobile. More as it comes in....
Original material ©1996-2026 Mr. Sharkey | All rights reserved
